Gli specialisti della casa in esclusiva

Ricerca immobili in vendita

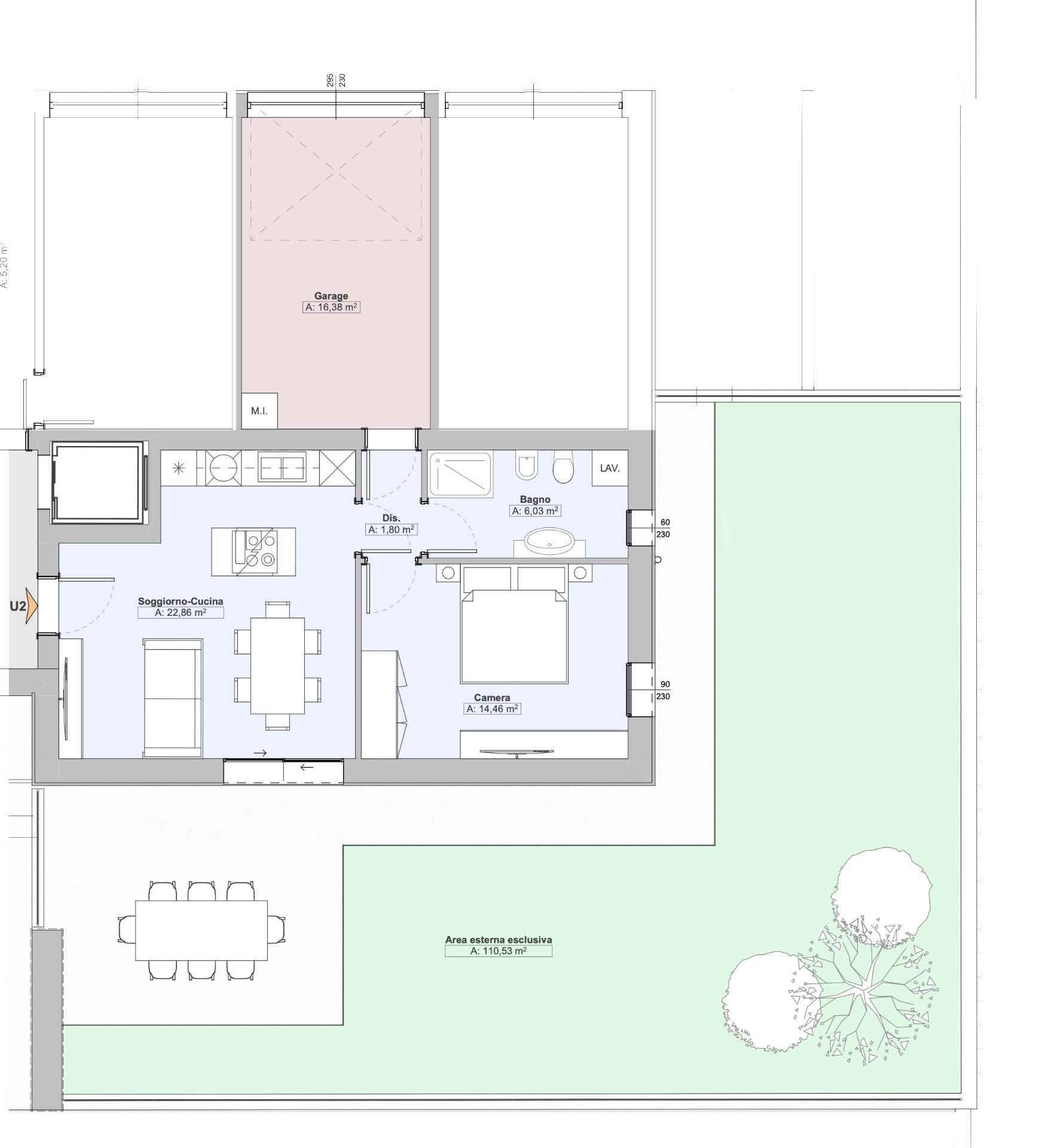
Appartamento 2 locali in Vendita a Montecchio Maggiore

Zona: Alte Ceccato

56 mq 1 Camere 1 Bagni

Residence Piave - UNITA' 2 - nuova futura costruzione, appartamento al piano terra con giardino privato e composto da ingresso in zona giorno con angolo cottura, camera matrimoniale, bagno finestrato e garage direttamente collegato all'appartamento.
Alcune dotazioni:
Riscaldamento a pavimento in pompa di calore
Tapparelle motorizzate
Serramento scorrevole tipologia rientrante zona giorno
Fotovoltaico di 3kw

Classe energetica

A3
Cod.: 256914 € 135.000
Dettagli immobile
Codice: 256914
Contratto: Vendita
Tipologia: Appartamento 2 locali
Regione: Veneto
Provincia: Vicenza
Comune: Montecchio Maggiore
Zona: Alte Ceccato
Prezzo: € 135.000
Totale mq: 56 mq
Camere: 1
Bagni: 1
Locali: 2
Riscaldamento: Autonomo
Disponibile: Si
Giardino: Privato, 110 mq
Box: Singolo

Ubicazione immobile